OPERA Progetto per un Agriturismo LOCALIZZAZIONE Valeggio sul Mincio SETTORE Ricettivo COMMITTENTE privato CRONOLOGIA progetto 2016-17 STATO progetto
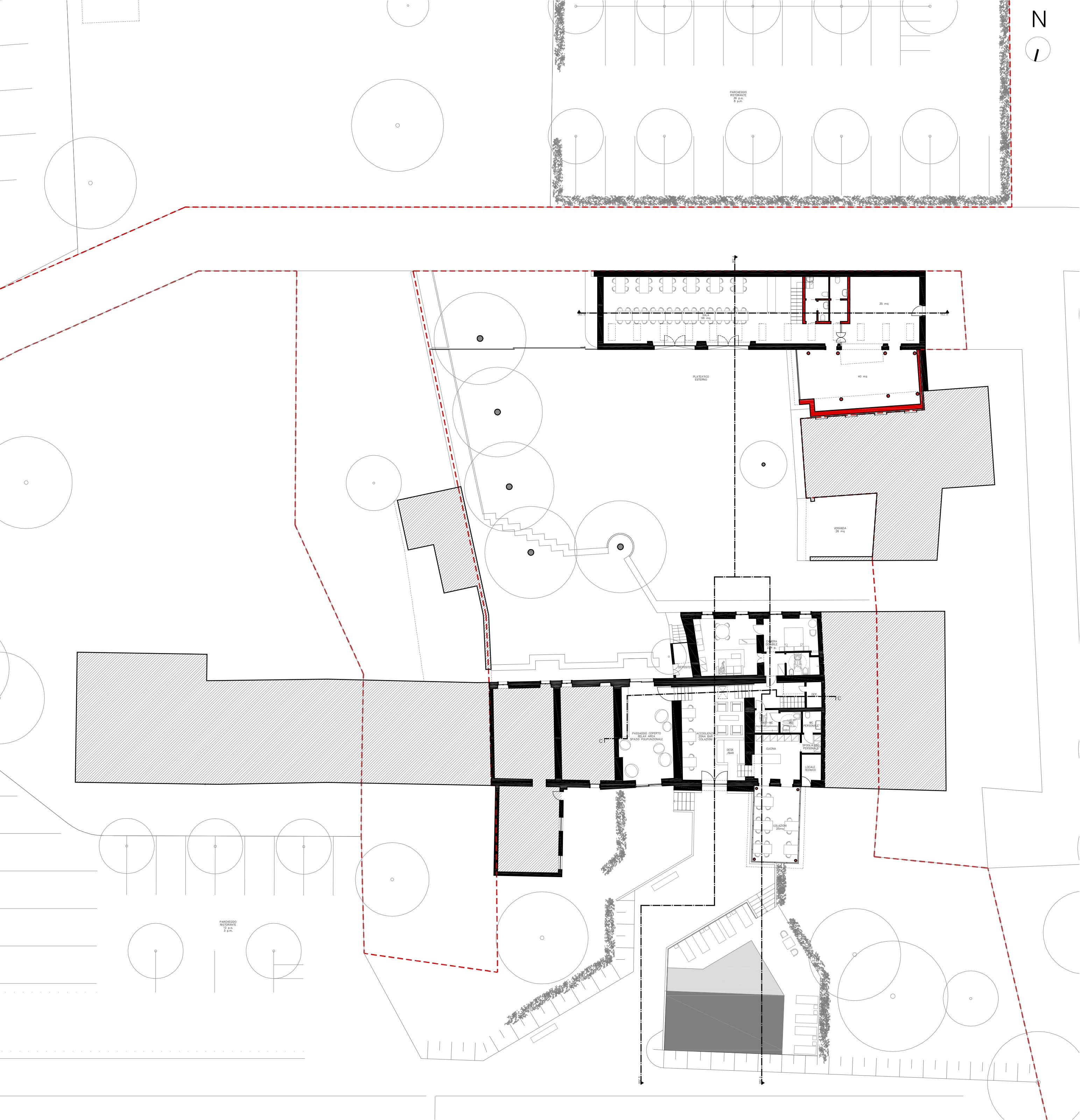
Progetto di restauro una corte rurale ottocentesca che sorge in posizione leggermente rialzata nel contesto delle Colline Moreniche a sud del lago di Garda.
Si prevede di realizzare un ristorante all’interno dell’ampio annesso rustico posizionato lungo la strada comunale e di ristrutturare le abitazioni agricole esistenti per collocarvi gli alloggi turistici.
La sistemazione degli spazi esterni prevede la realizzazione di una piscina e di un piccolo ampliamento dove servire le colazioni.







