OPERA
recupero di un sottotetto
LOCALIZZAZZIONE
Verona
SETTORE
residenziale
COMMITTENTE
privato
CRONOLOGIA
progetto 2015
realizzazione 2016
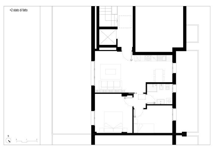
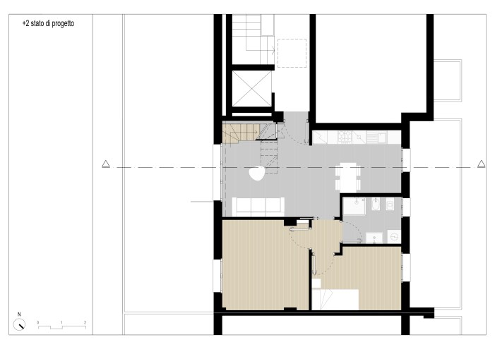
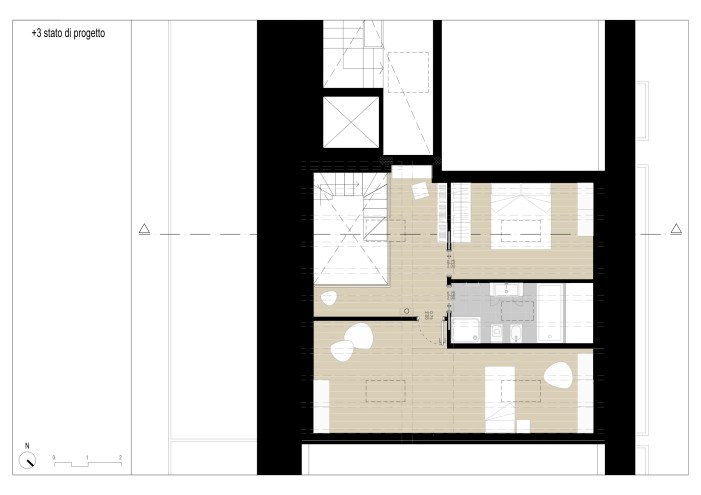
L’intervento riguarda il recupero di un sottotetto in un ambiente condominiale di recentissima costruzione.
Allo stato di fatto l’ambiente sottotetto si presentava come un angusto spazio compartimentato da tramezze che sorreggevano la struttura di copertura non isolata.
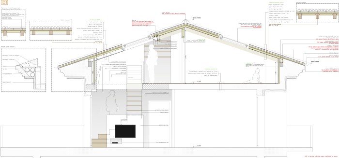
La vecchia copertura e i tavolati sono stati rimossi e sostituiti da un tetto rovescio costituito da travi a gomito in legno lamellare.
Ogni sforzo progettuale è stato indirizzato allo studio di pacchetti tecnologici dallo spessore minimo ma che potessero assicurare un adeguato comfort ambientale.

















