LOCALIZZAZIONE
Verona
SETTORE
residenziale
COMMITTENTE
privato
COLLABORATORI
arch. Emilia Quattrina
CRONOLOGIA
2021: progetto; 2022: realizzazione
STATO
realizzato
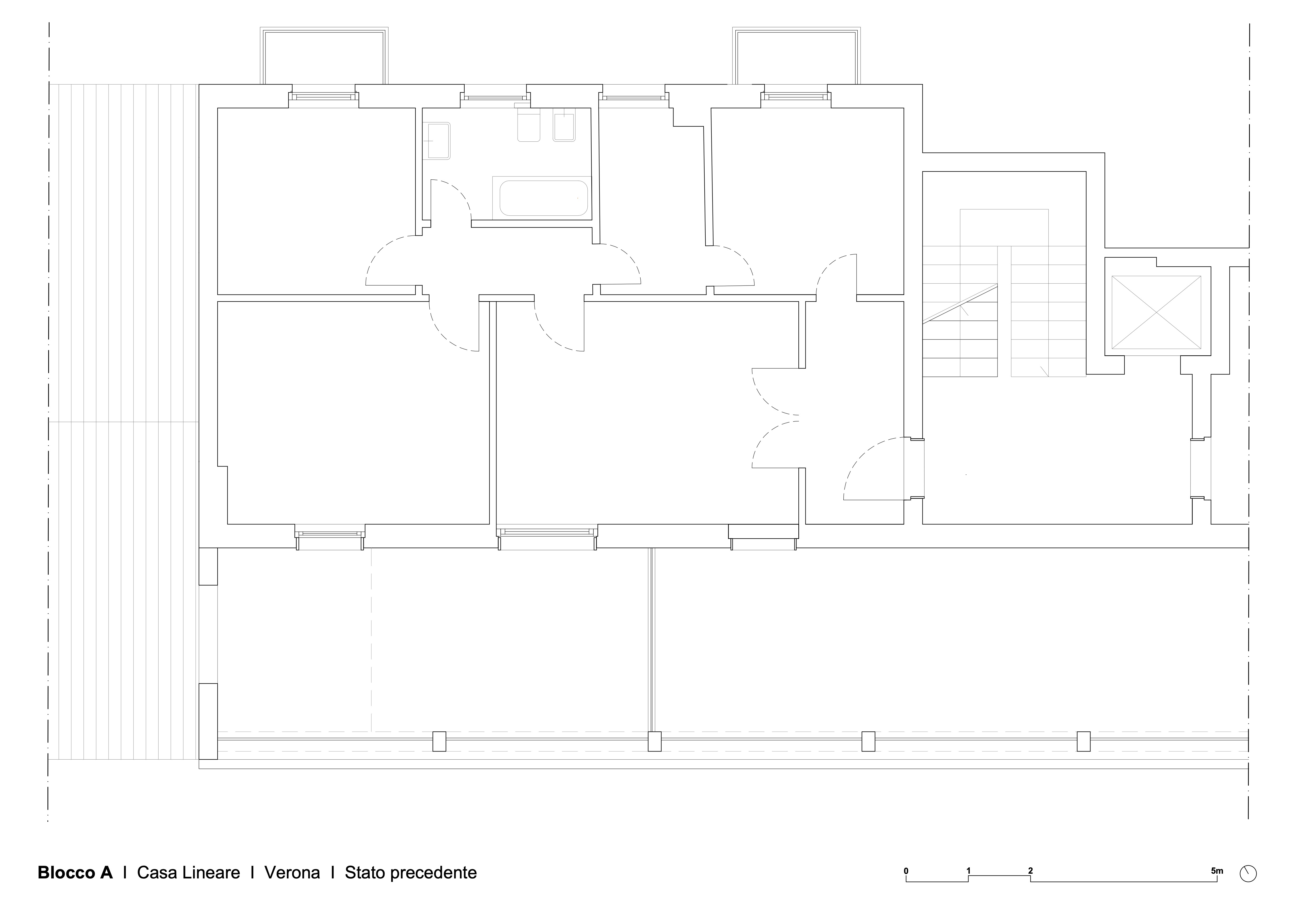
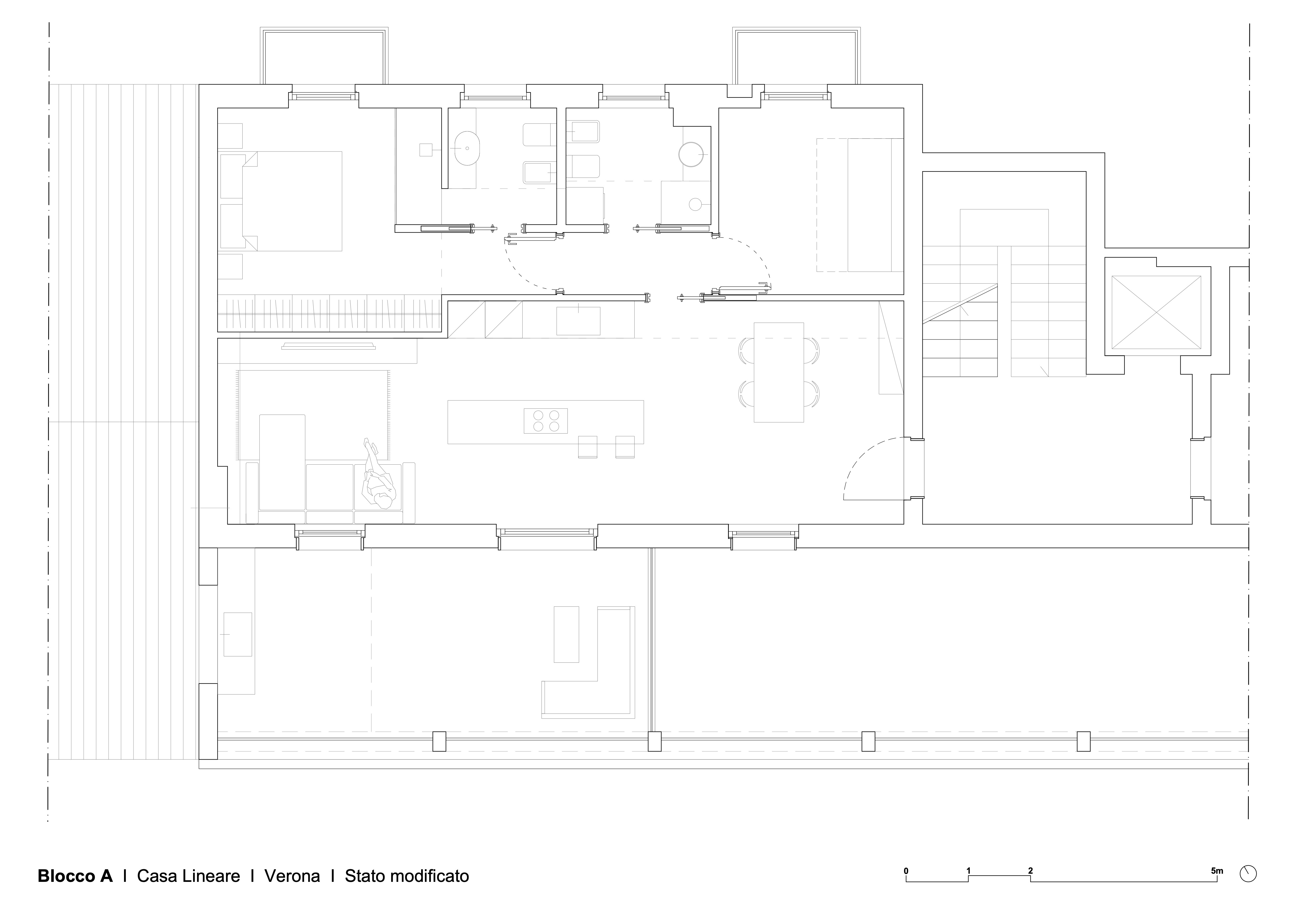
Un piccolo appartamento, al piano quinto, caratterizzato dall’ampio terrazzo affacciato sul centro storico veronese.
Un attento approccio progettuale ha permesso di trasformare l’originale dotazione di angusti locali in spazi ampi e luminosi, con l’aggiunta di un secondo bagno. Nella zona giorno trova spazio la cucina con l’isola disposta longitudinalmente nello spazio. Originale la soluzione che offre continuità visiva fra camera matrimoniale e bagno, attraverso la vetrata della doccia walk-in.
Magia?
Il segreto è nella composizione lineare.














