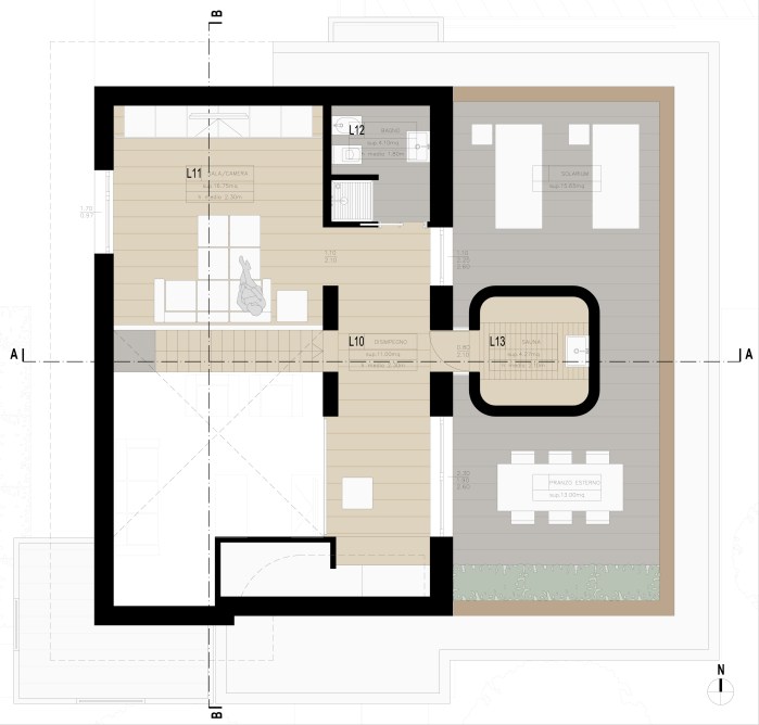
Casa MM+ OPERA ampliamento di un appartamento LOCALIZZAZIONE Caldiero (VR) SETTORE residenziale COMMITTENTE privato CRONOLOGIA progetto 2014 Condividi: Condividi su Facebook (Si apre in una nuova finestra) Facebook Condividi su Pinterest (Si apre in una nuova finestra) Pinterest Mi piace Caricamento...