OPERA Casa VF LOCALIZZAZIONE Verona SETTORE residenziale COMMITTENTE privato CRONOLOGIA progetto 2016 STATO progetto
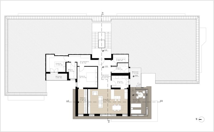
Il progetto prevede l’ampliamento di un appartamento al sesto piano di un condominio attraverso la modifica della sagoma della copertura dei locali sottotetto.
L’appartamento, già in posizione privilegiata, si arricchisce di un terrazzo e di un nuovo ampio affaccio sul quartiere di San Zeno e sulla basilica.






