OPERA
ristrutturazione di un appartamento
LOCALIZZAZIONE
Verona
SETTORE
residenziale
COMMITTENTE
privato
CRONOLOGIA
progetto 2016
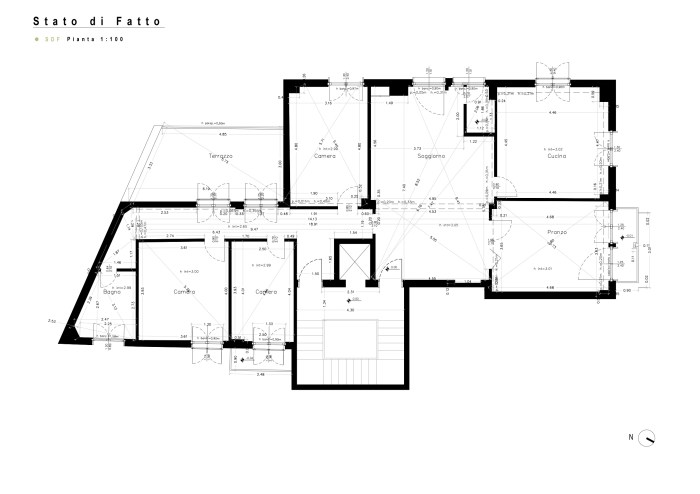
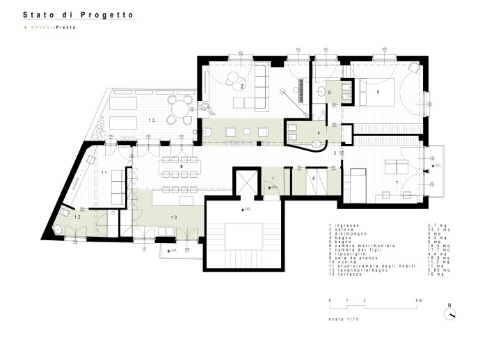
Al sesto piano nel centro storico di verona, in un palazzo del Dopoguerra, questo ex ufficio di 140 mq sarà trasformato nella dimora di una giovane coppia con figli.









