OPERA Ristrutturazione di un appartamento LOCALIZZAZIONE Verona SETTORE residenziale COMMITTENTE privato CRONOLOGIA progetto 2017 realizzazione 2017 STATO realizzato
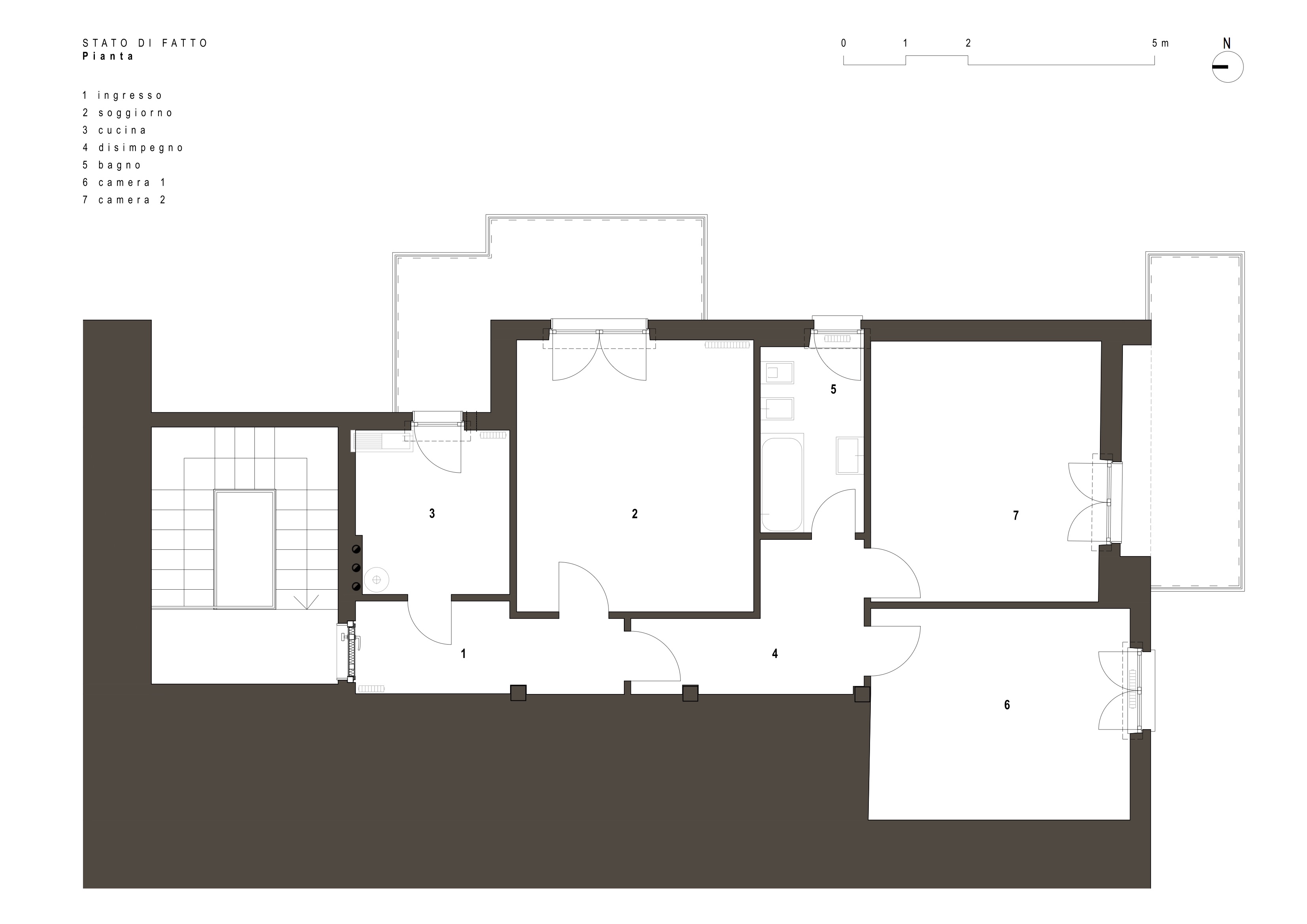
Con minime variazioni nella distribuzione interna si è riusciti a ridurre da 13 mq a 3 mq la superficie a disimpegno di questo appartamento di appena 70 mq, sito al secondo e ultimo piano di una palazzina datata 1970.
L’unico bagno, pur mantenendo la medesima superficie, è stato risagomato e organizzato in 1) antibagno con doccia e 2) bagno con lavanderia, favorendo l’uso contemporaneo da parte di due persone.
Il soggiorno e la cucina, mediando fra l’estetica dell’open space e la funzionalità della cucina separata, sono stati messi in relazione tramite l’apertura di un passavivande.
















